Comprar Ref: SG26-BCN-00010 (ID: 28568675) 310.000 €

Encantador piso reformado con terraza en Sants

Hab. Dobles 1
Baños 1
Construidos 59.00 m²

Contacte con nuestro agente inmobiliario

Natalia Sabaté
Natalia Sabaté +34 613 25 39 88
Contacta ahora

Descripción

Encantador piso reformado con terraza en Sants

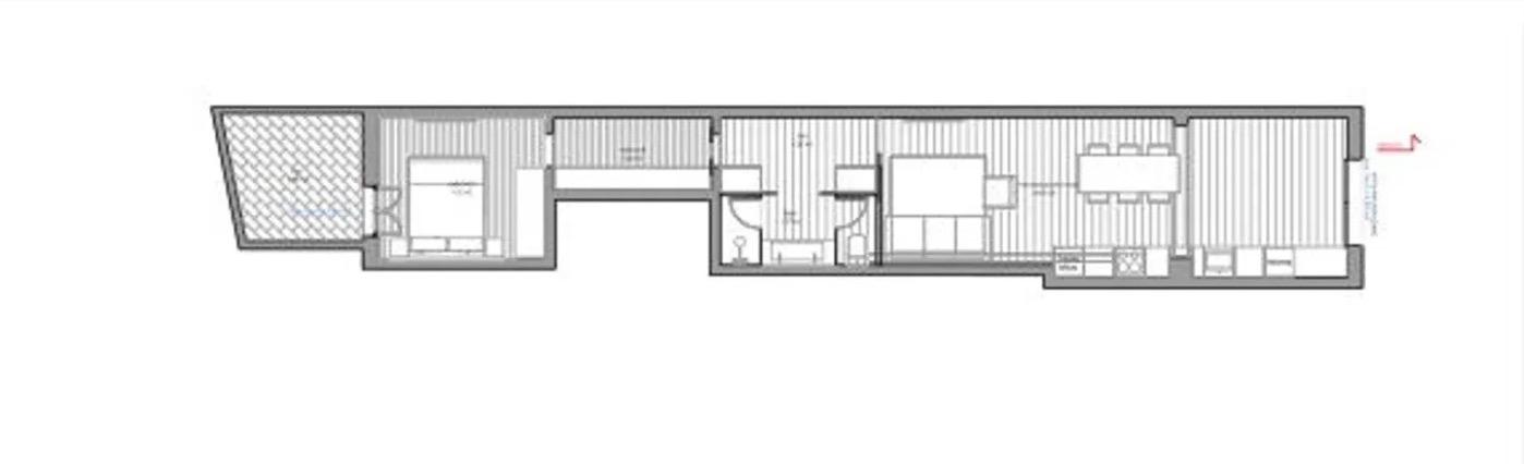
Descubre esta espectacular planta baja de 68 m² totalmente reformada, con una preciosa terraza exterior de 8 m², ideal para disfrutar del sol matutino. Ubicado en la calle Ventura Plaja, en el dinámico distrito de Sants, este piso combina encanto, modernidad y comodidad en una de las zonas mejor conectadas de Barcelona.

Al acceder desde la calle, te recibe una luminosa cocina de diseño, equipada con nevera, lavavajillas, horno y microondas, que se integra en un acogedor espacio diáfano perfecto para un salón con sofá en forma de L. La vivienda destaca por sus techos con volta catalana de casi 4 metros de altura, que aportan una sensación de amplitud y carácter único.

El baño, de concepto semiabierto y con acabados modernos, da paso al pasillo que conecta con el dormitorio. Este último ofrece suficiente espacio para un armario grande y cuenta con salida directa a la terraza privada, un rincón perfecto para relajarse.

Además, el piso está equipado con aire acondicionado por conductos con bomba de calor, garantizando confort en todas las estancias durante todo el año.

Ubicación privilegiada

Situado en el barrio de Sants, una de las zonas más demandadas de Barcelona, el piso está muy cerca del Camp Nou y a pocos minutos de la estación de Sants, el principal nodo de transporte de la ciudad, con trenes de alta velocidad, cercanías y metro. También cuenta con excelentes conexiones en autobús y metro (L5 – Badal y L1 – Plaça de Sants), facilitando el acceso a cualquier punto de la ciudad.

Rodeado de tiendas, supermercados, restaurantes y zonas verdes, este piso es ideal tanto para quienes buscan una vivienda en un barrio tranquilo con todas las comodidades, como para aquellos que desean una inversión segura en una ubicación estratégica.

No pierdas la oportunidad de visitarlo. ¡Contáctanos para más información!

Características y Extras

  • Airecentral
  • Alarmarobo
  • Ascensor
  • Banyos
  • Electro
  • Habdobles
  • Patio
  • Terraza

Ubicación

Certificado Energético

Clase
Consumo
Emisiones
A
B
C
D
E
238
F
238
G

Todas las fotos